93059 Regensburg / Reinhausen
Charmante Dachgeschosswohnung in Regensburg-Reinhausen – Ihr neues Zuhause oder eine attraktive Kapitalanlage
In begehrter Lage von Regensburg-Reinhausen erwartet Sie diese gepflegte und einladende Dachgeschosswohnung, die sowohl als gemütliches Zuhause als auch als lohnenswerte Kapitalanlage überzeugt. Das im Jahr 1996 erbaute Objekt vereint eine durchdachte Raumaufteilung mit einem angenehmen Wohnambiente und einer Lage, die urbanes Leben mit Ruhe verbindet.
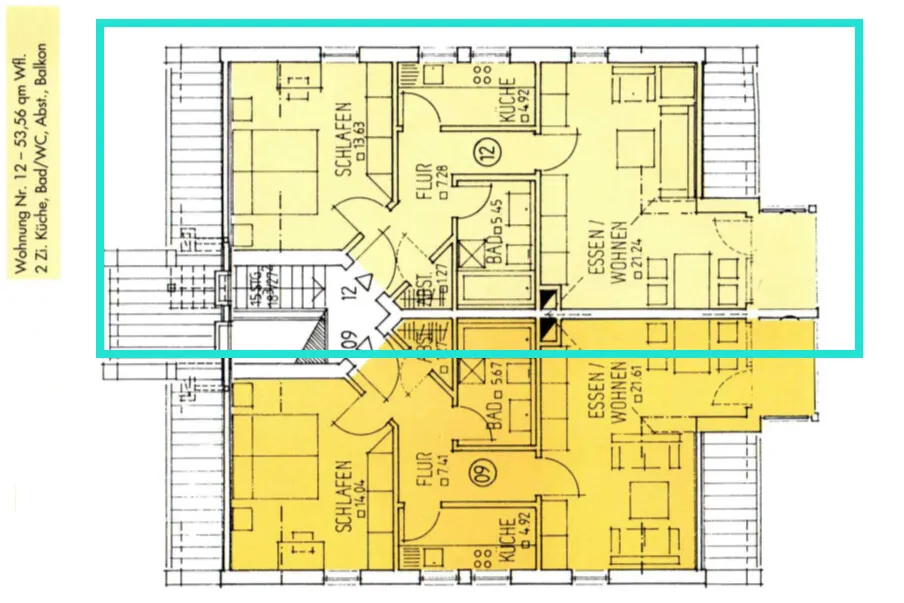
Auf ca. 54 m² Wohnfläche entfaltet sich ein harmonisches Wohnkonzept, das ideal auf die Bedürfnisse von Singles oder Paaren zugeschnitten ist. Bereits beim Betreten der Wohnung empfängt Sie ein freundlicher Eingangsbereich mit einem praktischen Abstellraum sowie ausreichend Platz für eine stilvolle Garderobe.
Der Grundriss überzeugt durch seine klare Struktur: Im „ersten“ Teil der Wohnung befinden sich das großzügige, nach Norden ausgerichtete Schlafzimmer mit einem großen Dachflächenfenster, das auch an warmen Tagen für angenehme Temperaturen sorgt. Gegenüber liegt das Tageslicht Badezimmer, das mit einer Badewanne ausgestattet ist und zusätzlich Anschlüsse für Waschmaschine und Trockner hat – komfortabel und alltagstauglich zugleich.
Die helle Küche mit zwei Fenstern schafft eine freundliche Atmosphäre und ist mit einer funktional gestalteten, L-förmigen Einbauküche ausgestattet, die optimalen Stauraum und kurze Wege beim Kochen bietet.
Herzstück der Wohnung ist das lichtdurchflutete Wohn- und Esszimmer mit einer Fläche von über 21 m². Hier genießen Sie ein offenes Raumgefühl und vielfältige Einrichtungsmöglichkeiten. Von hier aus gelangen Sie direkt auf den sonnigen Südbalkon, der zu entspannten Stunden im Freien einlädt. Der Ausblick ist dabei ein echtes Highlight: Genießen Sie den freien Blick über die Reinhausener Kirche bis hin zum Regensburger Dom – ein Panorama, das jeden Tag aufs Neue begeistert.
Ein zusätzlicher Pluspunkt ist der Zugang zum geräumigen Dachboden innerhalb der Wohnung über eine praktische Einschubtreppe – ideal als weiterer Stauraum. Ergänzt wird das Platzangebot durch ein eigenes Kellerabteil.
Auch in punkto Komfort lässt diese Immobilie keine Wünsche offen: Ihr Fahrzeug parken Sie bequem auf einem Tiefgaragenstellplatz, der sich direkt neben dem Hauszugang befindet – besonders praktisch im Alltag.
Ob zur Eigennutzung oder als Investition – diese charmante Dachgeschosswohnung vereint Lage, Komfort und Potenzial auf ideale Weise. Lassen Sie sich dieses attraktive Angebot in Regensburg nicht entgehen!
MFH mit 6 Parteien
2.Obergeschoss / Dachgeschoss
tolle Raumaufteilung auf 53,56 m²
praktischer Abstellraum
Fliesenboden in Küche und Bad
Laminatboden im Wohnbereich
L-förmige Einbauküche
Tageslichtbad raumhoch gefliest, Badewanne, Anschluss WM/TR
großes Dachflächenfenster im Schlafzimmer
Rollläden
Balkon nach Süden
Tiefgaragenstellplatz
großes Kellerabteil
Kabelanschluss
Glasfasernetz bis in die Wohnung wird von R-KOM umgesetzt
Die Wohnung befindet sich in einem gewachsenen Wohngebiet im Regensburger Stadtteil Reinhausen und eignet sich ideal für Singles und Paare, die eine gute Mischung aus Ruhe und Stadtnähe schätzen. Die Umgebung ist geprägt von angenehmen Wohnstraßen, gleichzeitig profitieren Sie von kurzen Wegen in die Regensburger Innenstadt – perfekt für Berufstätige und alle, die flexibel und unabhängig unterwegs sein möchten.
Einkaufsmöglichkeiten des täglichen Bedarfs, Bäckereien, Apotheken sowie weitere Dienstleister sind in der näheren Umgebung gut erreichbar, sodass sich der Alltag unkompliziert gestalten lässt. Auch die Anbindung an den öffentlichen Nahverkehr ist vorteilhaft, wodurch sich Ziele innerhalb des Stadtgebiets komfortabel erreichen lassen – ob zur Arbeit, zum Ausgehen oder für spontane Erledigungen.
Für die Freizeit bieten sich zudem verschiedene Möglichkeiten in der Umgebung, etwa Spaziergänge und sportliche Aktivitäten entlang der Grün- und Uferbereiche. Insgesamt überzeugt der Standort durch eine alltagstaugliche Infrastruktur, gute Erreichbarkeit und die Nähe zu urbanen Angeboten – eine passende Lage für Menschen, die stadtnah wohnen und dennoch entspannt leben möchten.
WEG Sonnenstraße 8a – 8e, 93059 Regensburg
Wohnung 12, Keller 12, Garage 32
36,6/1.000 Miteigentumsanteil